
Технические характеристики автономного туалетного модуля “Крым-МЖ/ММГН”
|
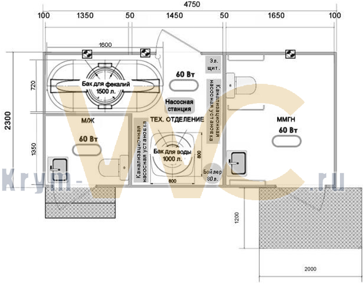
Габаритные размеры |
Длина: 4750 мм Ширина: 2350 мм Высота: 2740 мм. |
|
Туалетный модуль |
Является автономным, мобильным, для круглогодичного использования и не требует дополнительных пусконаладочных работ (кроме подключения внешнего электричества), с 4 (тремя) отдельными помещениями с независимыми входами (две туалетные кабины МЖ и техническое помещение). |
|
Несущий каркас модуля |
Сварной, стальной каркас из металлического уголка 100x100x7 мм., металлической профильной трубы 60*40*2 мм, 60*60*3 мм, 40*40*3 мм, 40*20*2 мм. |
|
Потолок |
Внутренняя отделка потолка - панели ПВХ шириной 250 мм; все стеновые стыки – уголки ПВХ серого цвета. |
|
Кровля модуля |
Мало уклонная, односкатная. Основа – деревянная обрешетка – доска 25x100, 50x100, утеплитель минеральная вата 100мм, пароизоляция, ветровлагозащита. Внутренняя черновая обшивка - фанера ФК Ш2 2/4 12 мм. Снаружи - профнастил С8, толщина 0,7мм., цвет коричневый, по-бокам доборные элементы так ого же коричневого цвета, как и профнастил. |
|
Пол модуля |
Основа – деревянная обрешетка – доска 25x100, 50x100, утеплитель минеральная вата 100мм, пароизоляция. Внутренняя черновая обшивка - фанера ФК Ш2 2/4 12 мм. Чистовая отделка – алюминиевый лист с рифленым покрытием “квинтет” толщиной 1,5мм. |
|
Пирог стен и материал наружной отделки стен: |
Основа – деревянная обрешетка – доска 25x100, 50x100, утеплитель минеральная вата 100мм, пароизоляция, ветровлагозащита. Внутренняя черновая обшивка - фанера ФК Ш2 2/4 12 мм. Снаружи - Доска ДПК (Древесно-полимерный композит) - цвет «Венге». |
|
Материал внутренней облицовки стен: |
Стены пользовательских помещений МЖ - алюминиевые композитные панели 3-0,3 мм; все Стеновые стыки и плинтус: алюминиевый профильный уголок 40*40*1,5 мм. Стены технического помещения - панели ПВХ шириной 250 мм; все стеновые стыки и плинтусы – уголки и плинтусы ПВХ серого цвета. |
|
Внутренние перегородки |
Металлическая профильная труба 60*40*2 мм, 60*60*3 мм, 40*40*3 мм, 40*20*2 мм, утеплитель минеральная вата 50мм, пароизоляция, ветровлагозащита. Черновая обшивка стене - фанера ФК Ш2 2/4 12 мм. |
|
Санитарное оборудование туалетного модуля |
Унитаз из нержавеющей стали, 2 шт. Раковина из нержавеющей стали подвесная, 2 шт. Сушилка для рук из нержавеющей стали, 2 шт. Сифон для раковины, хром, 2 шт; Порционный кран, механический, 2 шт. Дозатор жидкого мыла, антивандальный, металл, нержавейка, 2 шт. Держатель туалетной бумаги, антивандальный, металл, нержавейка, 2 шт. Крючок для одежды, металл, 3 шт.; Ершик для унитаза, металл, нержавейка, 2 шт.; Урна для мусора, металл, нержавейка, 2 шт.; Зеркало, настенное антивандальное, нержавеющая сталь - 2 шт. |
|
Двери |
Двери входные, металлические в помещеня М/Ж и техническое - Кол- во: 3 шт. Цвет темно-коричневый. Ширина, мм (по коробке) 900. Высота, мм (по коробке) 2060. Размеры двери в отд. ММГН - Ширина, мм (по коробке) 1000. Высота, мм (по коробке) 2060. Фурнитура дверей - механический врезной замок с внутренней задвижкой, дверной доводчик на 80 кг. |
|
Система водоснабжения |
Автономная. Пластиковая емкость 1500л. с системой автоматического обогрева типа “теплый пол”, внутренняя разводка труб диаметром 25/32 мм. |
|
Система канализации |
Автономная. Пластиковая емкость 1000л. с системой автоматического обогрева типа “теплый пол”, внутренняя разводка труб диаметром 40/110 мм. |
|
Освещение внутреннее |
Энергосберегающий светодиодный LED светильник IP54 – 3 шт. |
|
Освещение внешнее |
Энергосберегающий светодиодный LED светильник IP54 – 2 шт. |
|
Электропроводка |
Разъемы для выключателей и розеток – класс IP-54. Тип освещения - энергосберегающее, светодиодное. Количество светильников на отделение - 1 шт. Электрический щит - 1 шт. Вводный автомат 40А. Счетчик электроэнергии – 1 шт. Тип счетчик электроэнергии – однофазный. Устройство защитного отключения УЗО – 1 шт. Максимальная потребляемая мощность - 8 кВт. |
|
Система вентиляции |
Принудительная, электровентиляторы осевые, встраиваемые – 3 шт. Вентиляция приточная: естественная, посредством дверных проёмов. |
|
Прочее оборудование |
Водонагреватель (бойлер) с теном - объем 35 л.. Потребляемая мощность 1,5 кВт. Напряжение 220 В. Электрообогреватели (конвекторы) мощностью 1 кВт – 3шт.; Канализационный насос измельчитель - 2 шт; Насосная станция для воды, давление 2- 6 Бар - 1 шт; Розетка IP-54 - 7 шт.; Фотореле для включения всех лайтбоксов снаружи – 1шт. |
|
Оборудование для помещения для маломобильных групп населения (ММГН): |
Пандус в отд. ММГН, ступень в отд. МЖ выполнены из металлической профильной трубы размерами 40х40х3 мм, с антискользящим покрытием - рифлёный алюминиевый лист квинтет. Поручни ММГН для унитаза – 2 шт.: откидной, напольный и настенный, прямой. |
|
Информационные указатели, лайтбоксы и таблички |
1. Информационные лайтбоксы «Туалет» 2 шт. с пиктограммами 1190*205 мм. Размещение по краям модуля - на стенах снаружи слева и справа. Автоматическая подсветка в темное время суток. 2. Информационные лайтбоксы «WC» 2 шт. с пиктограммами 1375*205 мм. и 1532*205 мм Автоматическая подсветка в темное время суток. 3. Информационные лайтбоксы «РЕКЛАМНЫЕ» (по бокам – слева и справа) 2 шт. белые 1190*2000 мм. Автоматическая подсветка в темное время суток. |
Гарантийный срок на наши туалетные модули – 12 месяцев.